4977 Mount Pleasant Church Road, Macon, GA 31216
For Lease
+4
For Lease
+6
For Lease
View All 9 Photos
View All 9 Photos
Property Description
Ample and shared parking available. All utilities available. Zoned PDE. 155’ frontage on Mount Pleasant Church Road.
Location:
Property is located minutes from I-75 and the future mixed-use development on Hartley Bridge Road. Surrounding neighbors include Big Blue Marble Academy, FoamWorks Auto Spa, CVS, McDonald’s, Zaxby’s, Dairy Queen, Kroger, and many other retailers.
Space Details:
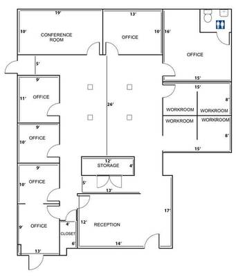
Space is ready for occupancy. Floor plan consists of six (6) private offices, one (1) restroom, conference room, reception area, four (4) workrooms, and two (2) closets.
Property Highlights
Ready for Occupancy
Mount Pleasant Church Rd Frontage
All Utilities Available
Renovated in 2022
Property Details
General
- Property Name: 4977 Mount Pleasant Church Road
- Monthly Rent: $1,900.00 AMT/Month
- Property Status: Active
- Property Type: Office
- Sub Type: Traditional Office
- Class: LEASE
- Lease Type: Modified Gross
- County: Bibb
- Zoning Description: PDE
- Lot Size: 1.19 Acres
Building
- Space Available: 2170 SF
- Year Built: 2002
- Construction Status: Existing