2525 Pio Nono Avenue Suite 1100, Macon, GA 31206

Property Description

Property is on a corner which offers great visibility and high traffic.

Location:
Located in the Middle Georgia Industrial Park at the intersection of Eisenhower Parkway and Pio Nono Avenue. Only 1/4 miles to I-75 and 3 miles to I-16. Convenient to 3 Regional and International Airports, 1 hour from Atlanta, and 2 Hours from the Port of Savannah.

Space Details:
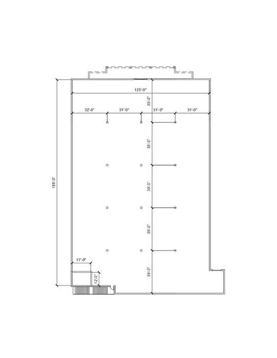
23,565 SF Industrial service building with 3.5 AC optional laydown. Recent improvements include an upgraded sprinkler system and LED Lighting, there is space for two 12'X16" future grade level doors. Additional tailgate loading potential available upon request. Ideal for building supply, equipment rental, truck maintenance, trade dispatch, service hub, truck parking, and heavy auto-parking.

Property Highlights

Property is on a corner which offers great visibility and high traffic
Space for two 12'X16" future grade level doors
Ideal for multiple uses
Only 1/4 miles to I-75 and 3 miles to I-16
Could also be used for retail space

Property Details

General

  • Property Name: 2525 Pio Nono Avenue Suite 1100
  • Price: Contact Agent
  • Property Status: Active
  • Property Type: Industrial
  • Sub Type: Warehouse
  • Class: LEASE
  • Date Available: November 25, 2024
  • County: Bibb
  • Zoning Description: C-2
  • Lot Size: 3.50 Acres

Building

  • Building Size: 23,565 SF
  • Space Available: 23565 SF
  • Year Built: 1985
  • Construction Status: Existing

Land

  • Traffic Count: 36,500