2525 Pio Nono Avenue Suite 1300, Macon, GA 31206
For Lease
+1
For Lease
+3
For Lease
View All 6 Photos
View All 6 Photos
Property Description
Location offers sign recognition and high visibility on Eisenhower Parkway. Property is located within the logistics hub of Macon, Georgia. MGIP is a unique 390,000 SF Industrial Park that sites on 45 acres.
Location:
Very convenient to both i-75 and I-16, only 1 hour from Atlanta and 2 hours from the Port of Savannah.
Space Details:
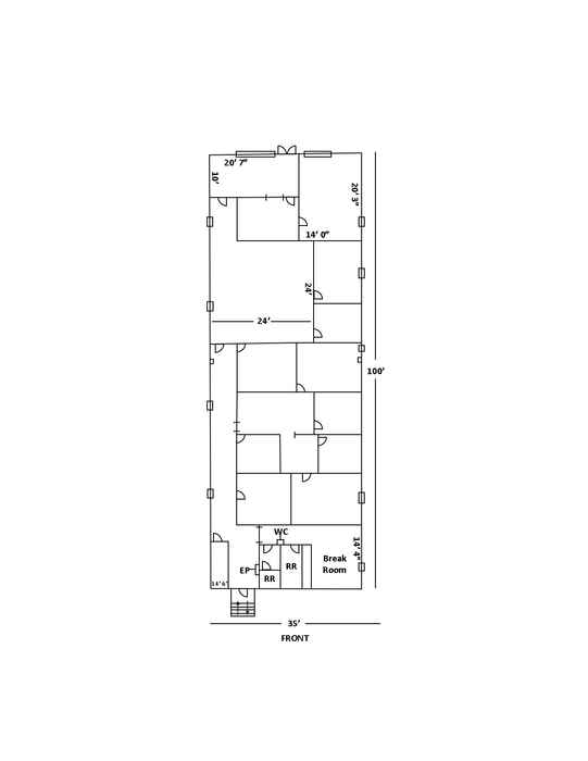
3,900 sf office building. Floor plan includes multiple offices, break room, and two restrooms. Would be an ideal location for an office such as tax services, professional, or government.
Property Highlights
High visibility
Sign recognition on Eisenhower Parkway
Property Details
General
- Property Name: 2525 Pio Nono Avenue Suite 1300
- Monthly Rent: $7.00 $/SF/Year
- Property Status: Active
- Property Type: Office
- Sub Type: Traditional Office
- Class: LEASE
- Date Available: December 9, 2024
- County: Bibb
- Lot Size: 1.30 Acres
Building
- Building Size: 3,900 SF
- Space Available: 3900 SF
- Year Built: 1980
- Construction Status: Existing