505 Highway 49, Byron, GA 31008

Property Description

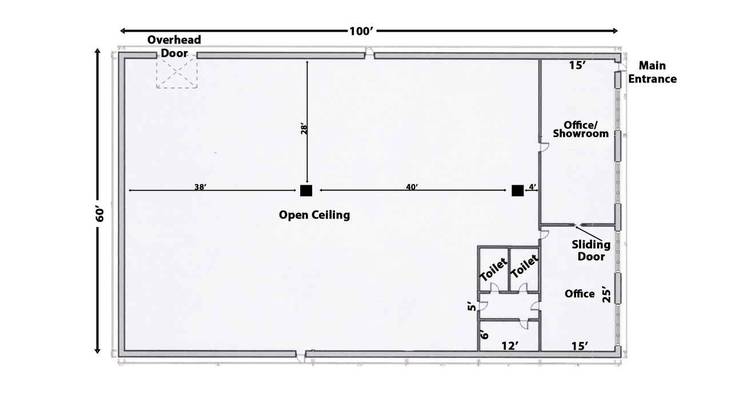
Previously operated as an appliance store, the 6,000 SF building features high ceilings, an abundance of parking, and a layout well-suited for a wide range of commercial, retail, flex, and light industrial uses. Recent upgrades include an updated office, showroom, service area, exterior paint and parking lot seal coating, providing a clean, move-in-ready presentation for an owner-occupant or tenant.

The property sits on 0.75 acres and is zoned C-3. Zoning accommodates retail, office, service, recreational entertainment, light industrial and many other uses —including showroom, warehouse, service businesses, light manufacturing, distribution, and trade companies. Improvements include office/showroom areas, two restrooms, and a 10’ x 10’ ground-level overhead door, all supported by full utility availability.

Ideal uses include (but are not limited to):
• Appliance or discount showroom
• Inventory liquidation
• Service companies (HVAC, electrical, plumbing, pest control, security, flooring, etc.)
• Supply/distribution operations
• Retail or flex-space businesses
• Entertainment and fitness (karate studio, dance studio, fitness gym, etc.)

Location:
Ideally situated between the Macon and Warner Robins markets, this location provides direct access to both of Middle Georgia’s primary trade areas. Surrounding national and regional retailers include the new Starbucks, Chick-fil-A, Popeyes, as well as Georgia Bob’s, Marcos Pizza, Zaxby’s, Uniform Outlet, BONWORTH, Hanes Brand Direct, and many other service, warehouse, and retail businesses—contributing to strong visibility and commercial synergy.

Space Details:
Move-In Ready Space for Retail, Showroom, Gym, Service Business, etc.Recent upgrades include an updated office, showroom, service area, exterior paint and parking lot seal coating, providing a clean, move-in-ready presentation for an owner-occupant or tenant.

Property Highlights

High ceilings
Abundant parking
Recently upgraded office/showroom/service area/exterior paint/parking lot
10x10 Overhead door
Easy access to Macon and Warner Robins
Ideal for service companies/appliance showroom/distribution operations and more

Property Details

General

  • Property Name: Highway 49 N 505
  • Monthly Rent: $4,300.00 $/SF/Year
  • Property Status: Active
  • Property Type: Retail
  • Sub Type: Free Standing Building
  • Class: LEASE
  • Lease Type: NNN
  • County: Peach
  • Zoning Description: C-3
  • Lot Size: 1.00 Acres

Building

  • Building Size: 6,000 SF
  • Space Available: 6000 SF
  • Gross Leasable Area: 6,000 SF
  • Year Built: 2014
  • Construction Status: Existing

Documents

Documents