1660 Waterville Road, Macon, GA 31206

Property Description

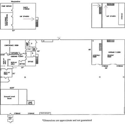
Warehouse area is 21,000 SF and office area is 3,000 SF for a total of 24,000 SF. There is an additional 22,000 SF office building located adjacent to the warehouse that can be utilized as and additional office space or removed to accommodate a large lay down yard, equipment storage, or truck parking. Three phase power to site with LED throughout, an infrared heating system and a Dry sprinkler system. Ceiling height is approximately 20’ with 40’ X 60’ column spacing supporting a flexible warehouse layout. The building does feature two 12’ X 15’ doors where the center column can be raised to create one large opening for oversized access. Loading includes one ground-level door and one ramped dock for versatile truck and equipment access. There is an additional 8’ X 8’ rear door with rail access/rail spur capability (the service can be restored). The yard is accessible for 53’ trailers with a fenced parking area in front of the building.

The warehouse in Macon’s established industrial corridor near existing industrial users and distribution companies. The property is conveniently located off the US-80 interstate with easy access to the I-75 and US-41 interstate.

Property Highlights

Warehouse Space 21000 SF and Office Area 3000 SF
Additional Office Space with 22000 SF of Space Adjacent to Warehouse
Three Phase Power On-Site
Ceiling Height 20
Two 12' X 15' Doors with One 8' X 8' Rear Door with Rail Access
Air Conditioned Office Space
Yard Accessible to 53' Trailers with Fencing

Property Details

General

  • Property Name: 1660 Waterville Road
  • Monthly Rent: $6.00 $/SF/Year
  • Property Status: Active
  • Property Type: INDUSTRIAL
  • Sub Type: WAREHOUSE
  • Class: LEASE
  • Lease Type: NNN
  • Date Available: March 16, 2026
  • County: Bibb
  • Zoning Description: M-1
  • Lot Size: 2.08 Acres

Building

  • Building Size: 24,000 SF
  • Space Available: 24000 SF
  • Year Built: 1970
  • Construction Status: Existing

Utilities

  • Utilities: HEATING AVAILABLE, COOLING AVAILABLE, LIGHTING AVAILABLE

Documents

Documents